Thiết Kế Nhà gác lửng 75m² Hiện Đại Tại Phú Yên – Công Ty CP Tư Vấn Đầu Tư Thiết Kế Xây Dựng HC
Với nhu cầu sở hữu không gian sống hiện đại, tiện nghi trên diện tích vừa phải, nhà gác lửng đang trở thành một xu hướng trong thiết kế nhà ở hiện nay. Công Ty CP Tư Vấn Đầu Tư Thiết Kế Xây Dựng HC tự hào giới thiệu dự án thiết kế căn nhà gác lửng diện tích 75m² cho ông Phan Văn Minh tại Phú Yên. Đây là công trình kết hợp giữa phong cách hiện đại và sự tiện nghi, tạo nên không gian sống tối ưu cho gia đình.

1. Thông Tin Dự Án
- Chủ đầu tư: Ông Phan Văn Minh
- Địa điểm: Phú Yên
- Diện tích thiết kế: 75m² – 2PN – 2WC
- Loại hình: Nhà gác lửng
- Phong cách thiết kế: Hiện đại, tối giản, tiện nghi
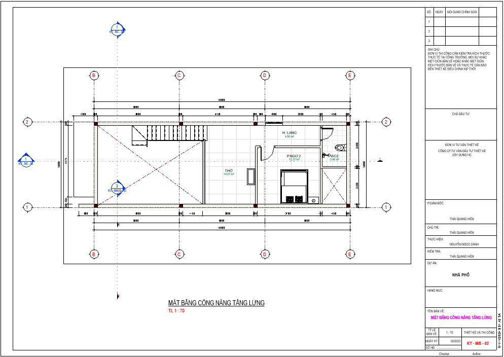
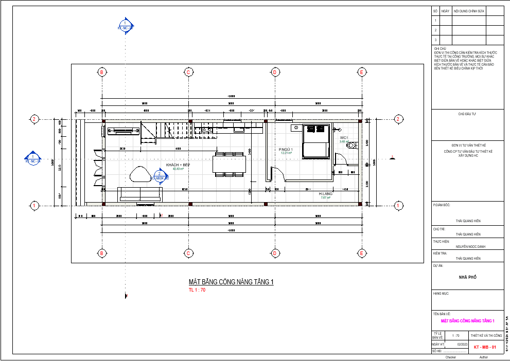
2. Điểm Nổi Bật Của Thiết Kế Nhà Gác Lửng
Nhà gác lửng là giải pháp tối ưu cho diện tích nhỏ nhưng vẫn đảm bảo không gian thoải mái. Với diện tích 75m², các kiến trúc sư của Công Ty HC đã tối ưu hoá công năng sử dụng trong từng khu vực, bao gồm:
- Không gian phòng khách: Kết hợp ánh sáng tự nhiên, tạo cảm giác thoáng đãng.
- Khu vực bếp và ăn uống: Thiết kế mở, tích hợp liền kề với phòng khách.
- Phòng ngủ gác lửng: Tạo sự riêng tư nhưng vẫn đảm bảo không gian thoáng mát và tiện nghi.
- Phòng vệ sinh hiện đại: Sử dụng vật liệu cao cấp và thiết kế tiện nghi.

3. Lợi Ích Của Nhà Gác Lửng Diện Tích 75m²
- Tăng diện tích sử dụng: Nhà gác lửng tận dụng tối đa không gian chiều cao.
- Giảm chi phí xây dựng: Thiết kế gác lửng giúp tiết kiệm chi phí so với các loại hình nhà tầng khác.
- Thẩm mỹ và phong cách: Căn nhà vừa mang vẻ đẹp hiện đại, vừa thể hiện phong cách sống tiện nghi.

4. Quy Trình Thiết Kế Và Thi Công Tại Công Ty HC
Công Ty HC đảm bảo quy trình thiết kế và thi công đạt tiêu chuẩn, chú trọng từng chi tiết từ khâu khảo sát, lập kế hoạch đến hoàn thiện công trình. Với kinh nghiệm và sự tận tâm, chúng tôi cam kết mang đến cho khách hàng ngôi nhà hoàn hảo nhất.
5. Liên Hệ Với Chúng Tôi
Nếu bạn quan tâm đến thiết kế và thi cômg, hãy liên hệ ngay với Công Ty CP Tư Vấn Đầu Tư Thiết Kế Xây Dựng HC. Chúng tôi luôn sẵn sàng tư vấn và đem đến giải pháp tối ưu nhất cho tổ ấm của bạn.
- Địa chỉ: 76 Phú Nông, Vĩnh Ngọc, Tp Nha Trang, Khánh Hòa
- Hotline: 0394622231
- Website: https://nhadephc.com/

Thiết Kế Nhà gác lửng 75m² Hiện Đại Tại Phú Yên – Công Ty CP Tư Vấn Đầu Tư Thiết Kế Xây Dựng HC Với nhu cầu sở hữu không gian sống hiện đại, tiện nghi trên diện tích vừa phải, nhà gác lửng đang trở thành một xu hướng trong thiết kế nhà ở…


